首页
二手房
新房
租房
商业办公
小区
经纪人
发布房源
房贷计算器
热线电话 021-37026080
登录
/
注册
搜索
你可能在找
关注房源
首页
>
二手房
>
上海二手房
>
松江老城二手房
>
仓城四村
分享
仓城四村 2室1厅 47平米 92万出售
满二不满五
实拍图
实拍图
实拍图
实拍图
实拍图
实拍图
实拍图
实拍图
92
万
19541
元/平
降7万
房贷计算器
贷款金额:
78
万,
30
年
首付参考:
15%
,约
14
万
月供参考:
3314
元
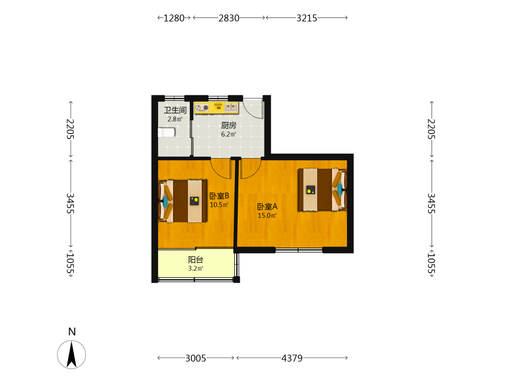
2室1厅
户型
47.1
㎡
面积
精装
装修
楼 层
高楼层/共6层
房屋朝向
南
房源编号
208559
所属片区
松江
松江老城
小区楼盘
仓城四村
周琦
182 1746 7165
加我微信
扫码拨号
基本信息
基本属性
房屋户型
2室1厅1卫1厨1阳
所在楼层
高楼层 (共6层)
建筑面积
47.1平米
套内面积
0平米
户型结构
平层
电梯情况
无电梯
房屋现状
自住
看房时间
预约
交易信息
挂牌时间
2025-12-24
房屋用途
商品房
购满年限
满二不满五
产权所属
共有
产权状态
清房无押
唯一房产
不唯一
权属来源
买卖
产权年限
70年
注:1.页面展示的"户型图、规划用途、产权性质、共有情况、建筑年代、产权年限、建筑结构、户型结构、电梯、供暖、上次交易、购房年限、抵押情况”等信息仅供参考,购房时请以房本信息为准。 2.与距离相关的数据来源于地图测量,仅供参考。
贷款参考
贷款类型
商业贷款
公积金贷款
组合贷款
贷款金额
万
贷款年限
1年
2年
3年
4年
5年
6年
7年
8年
9年
10年
11年
12年
13年
14年
15年
16年
17年
18年
19年
20年
21年
22年
23年
24年
25年
26年
27年
28年
29年
30年
利率方式
按旧版基准利率(4.9%)
按LPR(4.1%)
开始计算
贷款金额
万
贷款年限
1年
2年
3年
4年
5年
6年
7年
8年
9年
10年
11年
12年
13年
14年
15年
16年
17年
18年
19年
20年
21年
22年
23年
24年
25年
26年
27年
28年
29年
30年
公积金利率
开始计算
贷款金额
万
贷款年限
1年
2年
3年
4年
5年
6年
7年
8年
9年
10年
11年
12年
13年
14年
15年
16年
17年
18年
19年
20年
21年
22年
23年
24年
25年
26年
27年
28年
29年
30年
利率方式
按旧版基准利率(4.9%)
按LPR(4.1%)
贷款金额
万
贷款年限
1年
2年
3年
4年
5年
6年
7年
8年
9年
10年
11年
12年
13年
14年
15年
16年
17年
18年
19年
20年
21年
22年
23年
24年
25年
26年
27年
28年
29年
30年
公积金利率
开始计算
类型
等额本息还款
等额本金还款
贷款金额
0
万
0
万
月供
0
元
0
元
每月递减
0
元
贷款年限
0
年
0
年
利息总额
0
元
0
元
还款总额
0
万
0
万
本次计算仅作为购房参考,不能作为最终的购房依据。了解更准确的方案,建议咨询经纪人
小区信息
查看小区
小区楼盘
仓城四村
所属位置
上海
松江老城
小区均价
20828元/㎡
占地面积
0.00㎡
建筑面积
0.00㎡
规划楼栋
29栋
规划户数
556户
在售房源
1套
在租房源
0套
地图信息
交通
学校
医院
购物
生活
娱乐
2km
0.5km
1km
2km
2.5km
优选房源
优选
松江·松江老城
凤凰小区
1室1厅
·
50.1平米
110万
优选
松江·松江新城
紫东新苑
3室2厅
·
139.1平米
338万
优选
松江·松江老城
新理想花园
2室2厅
·
90.4平米
199万
优选
松江·松江老城
农房松江府
3室1厅
·
106.9平米
275万
优选
松江·松江新城
建设花园
3室2厅
·
134.9平米
430万
优选
松江·松江大学城
松云水苑
3室3厅
·
183.9平米
475万
优选
松江·松江新城
裕盛豪园
4室2厅
·
147.6平米
550万
优选
松江·松江老城
方舟休闲广场
3室2厅
·
119.5平米
299万
周边小区
百岁坊
乐都路111号
乐都路346号
荣乐中路12弄82号
谷阳南路22号
香家弄20号
20833元/㎡
醉白新苑
29990元/㎡
周星苑
27484元/㎡
联系经纪人
周琦
加我微信
182 1746 7165
扫码拨号
关注房源
特别提示:本房源所示信息仅供参考,购房或租房时请以该房屋档案登记信息、产权证信息以及所签订合同条款约定为准:本房源公示信息不做为合同条款,不具有合同约束力。
链接分享
关注
我的关注
工具
贷款计算器
扫码
扫码访问
客服
官方客服
返回顶部
官方客服
您可以拨打客服热线获得帮助
客服热线
021-37026080
密码登录
短信登录
注册账号
登录
忘记密码
获取验证码
登录
获取验证码
注册
登录即代表同意
隐私政策
及
用户服务协议
未注册过的手机号,验证通过后自动注册账号
获取验证码
确定